Here you can configure your Energy Chain System® individually. All entries will be copied to the Bill of Materials shown at the bottom of this page.
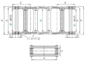
Series R188, energy tube
1.KMA-mounting brackets
2.Mounting brackets, locking or pivoting form
3. R188:Swivelable and removable lid
4.R188: Removable bottom lids
5.Combinable tube and chain
6.Integratable strain relief
7.140/141: Removable crossbars on both sides
Inner widths Bi: 1.97 up to 18.19 (50 - 462 mm)
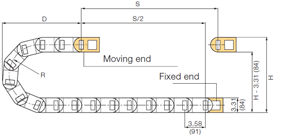
Bending radii R: 5.91 up to 19.68 (150 - 500 mm)
Pitch: 3.58 (91 mm) per link = 4 links/ft (11/m)